Rohrvortrieb in Tübbingbauweise - Vortrieb DN 1.300 unterquert U- Bahn
11.05.2007
Aufgrund der besonderen Gegebenheiten erhielt bei Unterquerung einer U-Bahn in Hamburg ein Nebenangebot mit dem Tauber Tunnel System den Zuschlag. Dabei handelt es sich um ein Schildvortriebsverfahren mit Tübbingausbau.
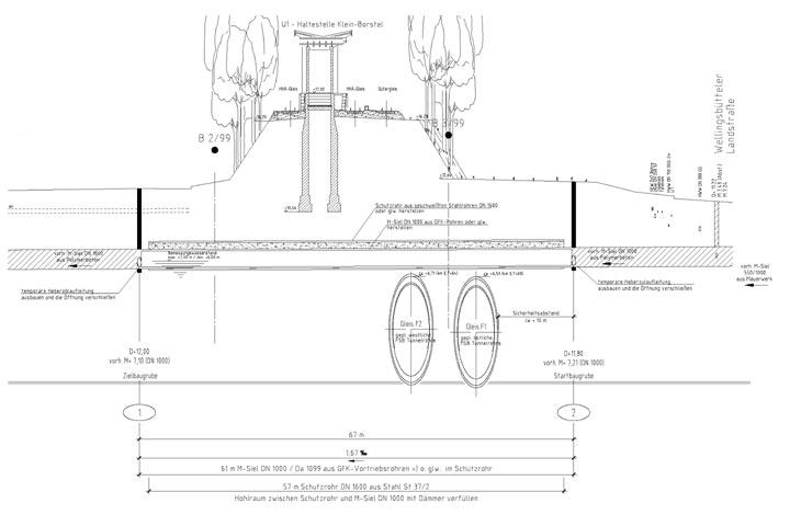
Die noch im (Innenaus-) Bau befindlichen Tunnelröhren der FSB kreuzen in ihren Ausfahrbereichen mit wenig Überdeckung die Wellingsbütteler Landstraße, unmittelbar östlich neben der U- Bahnhaltestelle Klein Borstel. Da das M-Siel der Klasse VIn der Wellingsbütteler Landstraße in seiner alten Lage im Aufbruchquerschnitt der Tunnelröhren lag, musste die Kreuzung des M- Sieles mit der FSB um etwa 40 m von der Wellingsbütteler Landstraße nach Norden unmittelbar unter der U-Bahn-Haltestelle Klein Borstel verlegt und damit neu geschaffen werden.
Im Rahmen der Sielbauphase I wurde bereits im Frühjahr 2004, östlich und westlich des Bahndammes, jeweils eine neue Teilstrecke der endgültigen Freigefälleleitung aus den Verkehrsflächen der Wellingsbütteler Landstraße heraus bis in die Richtung der herzustellenden FSB-Kreuzung verlegt. Die Teilstrecken wurden seinerzeit in unterirdischer Bauweise parallel zum U-Bahn-Damm mit Vortriebsrohren DN 1000 aus Polymerbeton hergestellt. Die bestehende Lücke zwischen den Teilstrecken wurde in der Bauphase I wegen einzuhaltender Sicherheitsabstände vom FSB-Tunnelbau im Ausfahrbereich und eines möglichen Absenktrichters im Oberboden über den Tunnelvortrieb temporär mit einer provisorischen Heberleitung DN 600 für die Dauer der FSB-Tunnelbauarbeiten geschlossen.
Gegenstand der Bauphase II ist im Wesentlichen der Lückenschluss und damit die betriebsfertige Herstellung des M-Sieles DN 1.000 Wellingsbütteler Landstraße als durchgehende Freigefälleleitung mit anschließender Aufhebung der Heberleitung.
Gegenstand dieser Sielbaumaßnahme ist die Herstellung von ca. 67m M-Siel DN 1.000 (Lückenschluss) mit Anschluss an die in der Bauphase I verlegten M-Siele. Davon sind ca. 57 m im Kreuzungsbereich mit der FSB und unterhalb der Gleisanlagen der U-Bahnhaltestelle im Schutzrohr DN 1.600 in unterirdischer Bauweise aufzufahren. Das vom AN herzustellende M-Siel DN 1.000 im Mantelrohr DN 1.600 liegt außerhalb der stark befahrenen Straßenverkehrsflächen der Wellingsbütteler Landstraße.
Die HSE hatte bereits im Rahmen der Sielbauphase I die Baugruben für die vom AN herzustellenden Einsteigeschächte Nr. 1 und Nr. 2, gleichzeitig Start- bzw. Zielbaugrube für die unterirdische Bauweise zur Herstellung der M-Sielverbindung DN 1000/ Lückenschluss, herstellen und mit Sand verfüllen lassen. Nach Abschluss der Bauphase I wurden in diesen Baugruben die Hebertöpfe der Ein- bzw. Auslaufbereiche aufgestellt und mit den Sielenden bzw. Heberleitung verbunden.
Es handelt sich dabei um wasserdichte Baugruben mit Stahlspundwänden und -sohlen. Der AN hat die vorhandenen Baugruben nach seinen Aushubarbeiten so umzurüsten, dass die Rohrpressung in die hiermit ausgeschriebene Richtung unter Betrieb der Heberleitung durchführbar ist.
Nach Fertigstellung und Inbetriebnahme des M-Sieles DN 1.000 erfolgt der Rückbau der Heberleitung. Hierbei handelt es sich um das vollständige Freilegen des erdverlegten Teiles der Heberleitung einschließlich der Hebertöpfe, den Ausbau der Flanschrohre DN 600 aus Stahl einschließlich Töpfen und Abtransport.
Der AN hat dafür Sorge zu tragen, dass die bestehende Vorflut des M-Sieles über den Heber DN 600 während der Sielbauarbeiten insbesondere an den Umschlussstellen innerhalb der vorhandenen Start- und Zielbaugruben nicht unterbrochen wird.
Die bereits vorhandenen Start- und Zielbaugruben für den herzustellenden Vortrieb und Einsteigeschächte Nr. 1 und Nr. 2 wurden im Rahmen der Bauphase I außerhalb der theoretisch möglichen Setzungsmulde der FSB hergestellt.
Mit der Haltung von Schacht Nr. 1 nach Nr. 2 müssen die Gleise der U-Bahnlinie U 1 und der im (Innenaus-) Bau befindlichen FSB gekreuzt werden. Der AN informiert sich rechtzeitig vor Baubeginn beim Bauherrn der FSB über die tatsächlich hergestellten äußeren Scheitelhöhen der beiden FSB-Tunnelröhren und dokumentiert das in seinen Ausführungsunterlagen. Nachdrücklich wird auf die sehr geringe Distanz zwischen der FSB und den Tiefgründungen der vorhandenen Bauwerke des U-Bahnhofes Klein Borstel hingewiesen. Die Kreuzung erfolgt unter Aufrechterhaltung des U-Bahnbetriebes. Die FSB ist zu diesem Zeitpunkt noch nicht im Betrieb. Die Kreuzung ist entsprechend der NE-Richtlinien zu markieren.
Es ist davon auszugehen, dass die dem herzustellenden Vortrieb zugewandten Baugrubenwände der Start- und Zielschächte nicht rechtwinkelig zur Vortriebsstrecke stehen. Für den dadurch entstehenden besonderen Aufwand bei der Herstellung der Pressenwiderlager in der Startbaugrube, den Ein- und Ausfahröffnungen in der jeweiligen Baugrubenwand und für die Aufstellung der notwendigen statischen Nachweise, hat die HSE im Leistungsverzeichnis eine Bedarfsposition vorgesehen, die alle damit im Zusammenhang stehenden zusätzlichen Leistungen abrechnen lässt.
Das Schutzrohr ist wasserdicht an die jeweilige Baugrubenwand anzuschließen. Das Mediumrohr DN 1.000 hat der AN gemäß den Darstellungen in der Bauzeichnung auf die Sohle des Schutzrohres höhengerecht zu fixieren.
Die Rohranschlüsse/ -einbindungen sind wasserdicht in die Schachtbauwerke einzubinden. In den zu liefernden Ausführungsunterlagen hat der AN dies im Detail konstruktiv darzustellen.
Auf Grund der örtlichen Situation unterhalb von Gleisanlagen der Haltestelle Klein Borstel und der bekannten Baugrundverhältnisse ist es nicht ausgeschlossen, auf Hindernisse zu treffen. Eventuelle Hindernisse sind deshalb zwingend horizontal durch das Schutzrohr DN 1.600 zu bergen. Eine vertikale Bergung von Hindernissen über zusätzliche Baugruben im Dammbereich der U-Bahn ist nicht möglich.
Der Ringraum zwischen Schutz- und Mediumrohr ist mit einem entsprechenden Verfüllmaterial ohne Luftporenbildner zu verfüllen. Beim Verfüllen des Ringraumes ist zu beachten, dass keine Verformungen des eingezogenen Rohres auftreten. Auf keinem Fall darf sog. „Schaumdämmer“ verwendet werden. Der Ringraum ist hohlraumfrei zu verfüllen. Erforderliche Belüftungs- und Entlüftungsstutzen sind in ausreichender Anzahl sowohl im Rohrscheitel als auch in der Sohle vorzusehen. Nach Abschluss der Ringraumverfüllung sind die Stutzen fachgerecht, wasser- und druckdicht zu versiegeln.
Mit den Sielbauarbeiten kann erst nach Abschluss der FSB-Tunnelbauarbeíten begonnen werden. Der Beginn der Sielbauarbeiten erfolgt nach Freigabe durch die Bauaufsicht der Baubehörde Hamburg. Der AN wird rechtzeitig vor Baubeginn aufgefordert, die Bautätigkeiten aufzunehmen. Ein Anspruch auf daraus sich evtl. ergebenden zusätzlichen Kostenerstattungen ist aus dieser Situation nicht abzuleiten.
Nach Auftragserteilung und vor Baubeginn ist ein detaillierter Bauzeitenplan zu liefern, der Vertragsbestandteil wird.
Im Umfeld des Planungsgebietes Flughafen S-Bahn finden im Zuge der Rückbaumaßnahmen nach Abschluss der FSB-Tunnelbaumaßnahme umfangreiche Bauaktivitäten auch anderer Gewerke statt. Während der gesamten Bauzeit muss der AN auch im Zufahrtsbereich nach / von der Baustelle mit Verkehrsbehinderungen rechnen. Der AN hat seine Baustelleneinrichtungsflächen rechtzeitig vor Baubeginn wegen der laufenden Bauarbeiten anderer Gewerke mit der örtlichen Bauaufsicht der HSE und der Baubehörde Hamburg abzustimmen.
Die Zufahrt zur Baustelle erfolgt über die Wellingsbütteler Landstraße. Die vorhandene Verkehrsbelastung dieser Straße ist sehr groß, sie beträgt ca. 22.000 Kfz/ d, davon etwa 7% Lkw-Anteil. Die Wellingsbütteler Landstraße ist dazu noch „eingeschlossen“ durch den Friedhof Ohlsdorf (Südseite) und dem Alsterverlauf (Nordseite) und kann in diesem Bereich nur weiträumig umfahren werden. Die Wellingsbütteler Landstraße darf für die Durchführung der ausgeschriebenen Sielbauarbeiten nicht gesperrt werden.
Abfluss-Situation
Unter Berücksichtigung des einjährigen Regenereignisses ist die im Betrieb stehende Heberleitung für ein TWA = 15 l/sec und RWA = 450 l/sec bemessen worden. Die Baustelle ist gegen Rückstau zu sichern. In jedem Abschnitt der Baumaßnahme ist der örtliche Abfluss aufrechtzuerhalten. Alle Vorflutmaßnahmen sind rechtzeitig vor Baubeginn mit dem zuständigen Sielbetrieb abzustimmen und genehmigen zu lassen.
Für die FSB-Teilmaßnahme „Zielschacht Bauabschnitt 5.1“ wurde ein „Geotechnisches Gutachten“ aufgestellt. Für den Sielbau wesentliche Auszüge aus diesem Bericht wurden dem AN bekannt gemacht.
Nach Angaben der Baubehörde wurde im Bereich der herzustellenden Sielbauarbeiten im Grundwasser ein PH-Wert von 8,0 ermittelt. Der AN hat den Wert bei der Planung seiner Materialien und Bauverfahren zu berücksichtigen.
Gemäß den vorliegenden Baugrunderkundungen ist im Bereich des Sieles mit Grundwasser zu rechnen, der Bemessungswasserstand wurde bei NN + 7,50 m ermittelt.
Abweichend von der ZTV-Siele Hmb. 2003 sind Beton- und Stahlbetonschächte gem. DIN EN 1917/ DIN V 4034-1 Typ 2 mit erhöhten Anforderungen und nachstehenden Einschränkungen anzubieten:
Alle Fertigteile müssen über integrierte Dichtung verfügen.
Statische Nachweise sind entsprechend der ZTV-Siele Hmb. 2003 Pkt. 1.3 zu führen.
Schachtgerinne und -auftritte sind mit Vollsteinen aus Kanalklinkern auszukleiden.
Schachtunterteile sind mit Anschlussmanschetten (Kor-N-Seal oder glw.) zu versehen. Die dabei auftretenden Einbaubelastungen (Spreizdruck) sind durch eine geeignete Bewehrung aufzunehmen.
Die in der ZTV-Siele Hmb. 2003 unter Pkt. 8 beschriebenen betrieblichen Anforderungen sind zu berücksichtigen.
Mindestbewehrung gem. ZTV-Siele Hmb.
Die Absteckungen (Sielachsen, Schachtstandorte usw.) sind im Wesentlichen unter Berücksichtigung der Trassenanweisung und den Angaben im Lageplan vom AN durchzuführen. Auch die Sicherung aller von HSE übergebenen Messpunkte sowie alle notwendigen Vermessungsarbeiten obliegen dem AN.
Nach Abschluss der Sielbauarbeiten sind Revisionsunterlagen mit Nachweis der Kontrollprüfungen auf Papier und elektronisch an das HSE-Leitungskataster zu liefern.
Besondere Problemstellung war die Unter- und zugleich Überquerung zweier Bahntrassen. Mögliche Setzungen mussten nahezu ausgeschlossen werden. Ein dauernd sich in Bewegung befindender Rohrstrang bedeutet auch konstante Bewegung und somit eine größere Erschütterung im Erdreich. Hinzu kommt, da bei einem konventionellen Rohrvortrieb die Rohrleitung von der Start- bis zur Zielbaugrube gepresst wird, sich daraus resultierende stetig ansteigende Reibung ergeben und gleichermaßen eine weitaus höhere Belastung der Vorpressrohre erfolgt.
Die Firma Preusse Baubetriebe hat sich aufgrund dieser Gegebenheiten entschieden ein Nebenangebot mit dem Tauber Tunnel System einzureichen. Da als Querschnitt gem. der Ausschreibung für das Mediumrohr lediglich ein DN 1000 erforderlich ist, beinhaltete das Nebenangebot für das Mantelrohr ein Rohr DN 1.300mm, welches für das einbringen eines Rohres DN 1.000 ausreichend ist.
Bei dem von der Tauber Rohrbau GmbH u. Co. KG angewandten Verfahren handelt es sich um ein Schildvortriebsverfahren mit Tübbingausbau. Der Ausbau erfolg mit drei identischen Stahlbetonsegmente (Tübbinge) in einer Länge von jeweils 75cm. Dieser zuletzt montierte Tübbingring verlängert den Rohrstrang somit um 0,75m und bildet gleichzeitig das neue Widerlager für den Vortrieb des Tunnelschildes.
Die Technik ist die gleiche, wie sie aus dem Großtunnelbau bekannt und bewährt ist. Das Verfahren wurde in den 60er Jahren in England von der „Rees-Gruppe“ für die Nennweiten von DN 1000 bis DN 2000 modifiziert und von der Firma Tauber in den folgenden Jahren immer wieder verbessert und weiterentwickelt.
Der Abbau findet aus dem gesicherten Tunnelschild statt.
Entsprechend den Bodenverhältnissen und den zu erwartenden Hindernissen werden die optimalen Abbautechniken an der offenen Ortsbrust eingesetzt, wie Hydraulikbagger, Handabbau, Spaltgerät oder Lockerungssprengungen. Die freie Sicht ermöglicht dem Mineur ein flexibles und überlegtes Handeln. Große Hindernisse werden in transportfähige Größen zerkleinert und geborgen. Das gelöste Erdreich wird auf das dahinterliegende Förderband aufgegeben und wird überdies in eine Lore gefüllt und mittels Akkulok über Gleise zur Baugrube befördert.
Die Sicherung der Ortsbrust bei Baugrund mit geringer oder fehlender Kohäsion wird erreicht durch den Einsatz einer verlängerten Haube oder durch den auch nachträglich möglichen Einbau von Bühnenblechen, diese unterteilen den Böschungskegel in sich, so dass mehrere übereinanderliegende Kegel entstehen. Bei besonders rolligen Böden ist eine Vorabinjektion, aus dem Schild heraus ausführbar.
Wie im Großtunnelvortrieb mit Tübbingausbau wird auch beim Tauber Tunnel System der Überschnitt, resultierend aus der Differenz von Außendurchmesser der Schildröhre und dem Außendurchmesser des Rohrstranges, kontinuierlich verfüllt. Die Verfüllung geschieht pneumatisch mit einem Korngemisch von 2-8mm. Nach Auffahren einer kompletten Haltung wird das den Rohrstrang umgebene Korngerüst mit einer Zementsuspension injiziert.
Hinter dem Tunnelschild herrscht Ruhe im Erdreich.
Die volumenfreie Einbindung des Tunnels führt zu einer sehr setzungsarmen Ausführung.
Ein weiterer Vorteil des Tauber Tunnel Systems kam bereits vor zwei Jahren in Hamburg zum tragen. Ein gemauerter Mischwasserkanal Klasse VI wurde im Auftrag der Hamburger Stadtentwässerung erneuert. Dort wurde mittels Tunnelvortrieb die alte Kanaltrasse überfahren. Bei der Tübbingbauweise ist die Aufnahme von Anschlussleitungen während der Vortriebsarbeiten möglich, da der Rohrstrang nicht mehr bewegt wird. Temporäre Hilfsleitungen übernehmen in diesem Fall die laufende Entsorgung.
Die Erfahrungen mit der Sielbauphase I in der Wellingsbütteler Landstraße konnten sich bei der Erstellung der Ausschreibungsunterlagen für die Sielbauphase II zunutze gemacht werden. Insbesondere die Abstimmungen mit beteiligten anderen Leitungsträgern als auch mit Mitarbeitern der Bauaufsicht der Baubehörde Hamburg konnten konstruktiv in die Entwurfsarbeit einfließen. Dies führte zu einem Sielentwurf, der der gestellten Aufgabe - Querung eines U-Bahn-Dammes unter Aufrechterhaltung des Fahrbetriebes - voll gerecht wurde. Die Angebotsbearbeitung und die sich daraus ergebende Bauabwicklung des Nebenangebotes der Firma Preuße Baubetriebe zeigte wiederum, dass sich das kreative Potential in den Sielbauunternehmen entwickelt und realisiert, werden entsprechend anspruchsvolle Aufgaben ausgeschrieben. So profitieren beide Seiten voneinander.
Weitere News und Artikel
18.08.2025
News
Kanalgipfel 2025: Aussteller Aarsleff
Die Entwässerungssysteme unserer Städte sind ein wesentlicher Bestandteil des kommunalen Anlagevermögens. Die große Zukunftsaufgabe, vor der viele Kommunen stehen, besteht in einer fundierten technischen …
12.08.2025
News
Kanalgipfel 2025: Was meint der Mensch, was sieht die Maschine? | Netzübergreifende vergleichende Untersuchungen zu Qualitätsunterschieden bei Erfassung und Bewertung von Kanalisationen
Die Entwässerungssysteme unserer Städte sind ein wesentlicher …
07.08.2025
News
Kanalgipfel 2025: KI-basierte Substanzbewertung von Kanalisationen
Die Entwässerungssysteme unserer Städte sind ein wesentlicher Bestandteil des kommunalen Anlagevermögens. Die große Zukunftsaufgabe, vor der viele Kommunen stehen, besteht in …
07.08.2025
News
Kanalgipfel 2025: Netzweite operative Bedarfsplanung mittels individuellem Sanierungskosten- und Entscheidungsmodell
Die Entwässerungssysteme unserer Städte sind ein wesentlicher Bestandteil des kommunalen Anlagevermögens. Die große Zukunftsaufgabe, …
14.07.2025
News
Kanalgipfel 2025: Umsetzungsorientierte Finanzierungsstrategien zur Substanzerhaltung von Entwässerungssystemen
Die Entwässerungssysteme unserer Städte sind ein wesentlicher Bestandteil des kommunalen Anlagevermögens. Die große Zukunftsaufgabe, …
09.07.2025
News
Kanalgipfel 2025: Aussteller NIVUS
Die Entwässerungssysteme unserer Städte sind ein wesentlicher Bestandteil des kommunalen Anlagevermögens. Die große Zukunftsaufgabe, vor der viele Kommunen stehen, besteht in einer fundierten technischen und …
03.07.2025
News
Kanalgipfel 2025: Aussteller IBAK
Die Entwässerungssysteme unserer Städte sind ein wesentlicher Bestandteil des kommunalen Anlagevermögens. Die große Zukunftsaufgabe, vor der viele Kommunen stehen, besteht in einer fundierten technischen und …
01.07.2025
News
Kanalgipfel 2025: Aussteller Canal-Control Gruppe
Die Entwässerungssysteme unserer Städte sind ein wesentlicher Bestandteil des kommunalen Anlagevermögens. Die große Zukunftsaufgabe, vor der viele Kommunen stehen, besteht in einer fundierten …
27.06.2025
News
Kanalgipfel 2025: Aussteller WIEDEMANN enviro tec
Die Entwässerungssysteme unserer Städte sind ein wesentlicher Bestandteil des kommunalen Anlagevermögens. Die große Zukunftsaufgabe, vor der viele Kommunen stehen, besteht in einer fundierten …
24.06.2025
News
Kanalgipfel 2025: Aussteller Endoline Rohrsysteme
Die Entwässerungssysteme unserer Städte sind ein wesentlicher Bestandteil des kommunalen Anlagevermögens. Die große Zukunftsaufgabe, vor der viele Kommunen stehen, besteht in einer fundierten …
23.06.2025
News
Kanalgipfel 2025: Aussteller SAERTEX multiCom®
Die Entwässerungssysteme unserer Städte sind ein wesentlicher Bestandteil des kommunalen Anlagevermögens. Die große Zukunftsaufgabe, vor der viele Kommunen stehen, besteht in einer fundierten technischen …
17.06.2025
News
Kanalgipfel 2025: Finanzierungsbedarf in der Wasserwirtschaft
Die Entwässerungssysteme unserer Städte sind ein wesentlicher Bestandteil des kommunalen Anlagevermögens. Die große Zukunftsaufgabe, vor der viele Kommunen stehen, besteht in einer …
Kontakt
Hamburger Stadtentwässerung
20097 Hamburg
