Inspektionsöffnung
Die DIN EN 752-1 [DINEN752-1:1996] definiert die Inspektionsöffnung wie folgt: Öffnung mit abnehmbarem Deckel, angebracht auf einer Abwasserleitung oder einem Abwasserkanal, die die Zugänglichkeit nur von der Oberfläche aus erlaubt, nicht jedoch den Einstieg von Personen gestattet.
Inspektionsöffnungen müssen nach ATV-A 241, Ausgabe 1995 [ATVA2411:1978] den betrieblichen Belangen, insbesondere der Belüftung, Inspektion und Reinigung entsprechen. Ihr Querschnitt muß daher auf die zur Anwendung gelangenden Geräte und Hilfsmittel abgestimmt werden.
Sie werden zur Zeit vornehmlich in der Grundstücksentwässerung eingesetzt. Es sind jedoch Bestrebungen erkennbar, diese Bauwerke aus Kostengründen auch in den öffentlichen Entwässerungsnetzen verstärkt anstelle von Schächten anzuordnen.
Beispiele dieser Bauwerke aus unterschiedlichen Werkstoffen zeigen (Bild 1.8.3-1) , (Bild 1.8.3-2) , (Bild 1.8.3-3) , (Bild 1.8.3-4) und (Bild 1.8.3-5) .
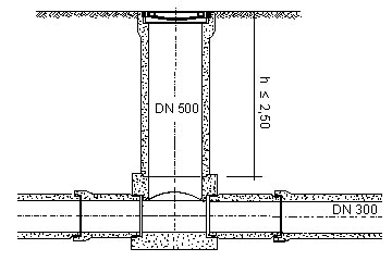
Bild 1.8.3-2:
Inspektionsöffnung aus Beton [FI-Betonb] - Detail |
Bild 1.8.3-3:
Inspektionsöffnung aus Kunststoff [FI-Prinz] |
Bild 1.8.3-4:
Inspektionsöffnung aus Steinzeug DN 400 [FI-Stein] - Ansicht |
Bild 1.8.3-5:
Inspektionsöffnung aus Steinzeug DN 400 [FI-Stein] - Schnitt |
