Grundleitungen
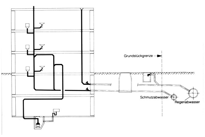
Grundleitungen sind "im Erdreich oder in der Grundplatte unzugänglich verlegte Leitungen, die das Abwasser in der Regel dem Anschlußkanal zuführen" [DIN1986:1995] (Bild 1.9.1-1) (Bild 1.9.1-3) (Bild 1.9.1-2).
|
Bild 1.9.1-1:
Lage der Grundleitungen unter Gebäuden - Schematische Darstellung [DIN1986:1995] |
Bild 1.9.1-3:
Lage der Grundleitungen unter Gebäuden - Blick in eine Baugrube mit verlegter Grundleitung aus Steinzeug [FI-Steinb] |
Sie bilden ein weitverzweigtes und kompliziertes Netz mit einer Fülle von Formstücken, wie Abzweigen, Bögen und Übergangsstücken, dessen Gesamtlänge und Gefährdungspotential nicht in den im (Abschnitt 1.1) zitierten 800.000 km langen, privaten Abwasserleitungen enthalten ist.
Grundleitungen sollen "so tief verlegt werden, daß möglichst das ganze Grundstück - auch bei Erweiterung der Anlage - durch ihre Verlängerung entwässert werden kann.
Der Durchmesser der Grundleitung muß mindestens DN 100, das Gefälle mindestens 1:100, bei mehrfachen Richtungsänderungen und innerhalb von Gebäuden 1:50 betragen. Für Richtungsänderungen sind nur Formstücke aus gleichem Werkstoff zu verwenden. Abzweige dürfen höchstens 45° haben. Doppelabzweige sind unzulässig.
Der Füllungsgrad (h/d) der Grundleitung innerhalb von Gebäuden sollte zur Begünstigung der Lüftung nicht größer sein als 0,5, in Ausnahmefällen 0,7. Nur bei größeren Anlagen und außerhalb von Gebäuden kann eine Vollfüllung in Ausnahmefällen zugelassen werden.
Grundleitungen müssen dicht sein und sind frostfrei zu verlegen, eine Belastung durch tragende Bauteile ist durch entsprechende Vorkehrungen auszuschließen" [DIN1986:1995] .
Bisher durchgeführte Inspektionen [Stein90d] haben ergeben, daß die optische, aber auch die quantitative Inspektion von Grundleitungen mit der derzeit vorhandenen Inspektionstechnik nur bedingt möglich sind.
Diese Ergebnisse bestätigen, daß die bisherige Art der Verlegung von Grundleitungen im krassen Widerspruch zur Musterbauordnung [MBO81] steht, nach der "bauliche Anlagen so anzuordnen, zu errichten, zu ändern und zu unterhalten sind, daß die öffentliche Sicherheit und Ordnung, insbesondere Leben oder Gesundheit, nicht gefährdet werden. Sie müssen ihrem Zweck entsprechend, ohne Mißstände zu benutzen sein".
Um eine ordnungsgemäße Zustandserfassung und Einschätzung des Gefährdungspotentials vornehmen und im Schadensfall ohne Schwierigkeiten und zusätzliche Kosten bauliche Sanierungsmaßnahmen durchführen zu können, wird heute empfohlen, zumindest bei Neubau- oder Erneuerungsmaßnahmen von dieser bisherigen Leitungskonzeption Abstand zu nehmen und anstelle von Grundleitungen Sammelleitungen vorzusehen [Stein92b] [Stein87a] [Stein89e] [Kraut91] .
Die Sammelleitung unterscheidet sich von der Grundleitung dadurch, daß sie oberhalb oder zugänglich in einer Leitungsrinne innerhalb der tiefsten Kellersohle verlegt wird und dadurch problemlos inspiziert werden kann (Bild 1.9.1-4) (Bild 1.9.1-5) (Bild 1.9.1-6) .
Festgestellte Schäden sind einfach zu beheben. Je nach Höhenlage der Rückstauebene kann dabei der Einbau einer Fäkalienhebeanlage notwendig sein.
(Bild 1.9.1-4) , (Bild 1.9.1-5), (Bild 1.9.1-6) und (Bild 1.9.1-7) zeigen Lösungsvorschläge aus dem Abwasserkonzept 2000 der Stadt Köln [Schaa94] .
|
Bild 1.9.1-4:
Skizze einer Sammelleitung mit Fäkalienhebeanlage im Bereich der Kellersohle [Schwe90] |
Bild 1.9.1-5:
Instandhaltungsgerechtes Hausentwässerungssystem in Anlehnung an [Schaa94] [Quelle: STEIN Ingenieure GmbH] - Variante 1: Rohrführung in einer Leitungsrinne mit innenliegendem Revisionsschacht in der Kellersohle |
Bild 1.9.1-6:
Instandhaltungsgerechtes Hausentwässerungssystem in Anlehnung an [Schaa94] [Quelle: STEIN Ingenieure GmbH] - Variante 2: Rohrführung abgehängt unter der Decke oder entlang der Kellerwand mit Revisionsöffnung |
